
- Essraum/Aufenthaltsraum mit Cheminéeofen
- Küche mit Gastgewerbeherd inkl. Wärmeschrank, Geschirrwaschmaschine
- 1 Tiefkühler im Vorratsraum
- 3 Kühlschränke im Vorratsraum
- Büro für Leiter/innen, ausgestattet mit Büro-, Bastel- und Sportmaterial für den Aussenplatz
- Besenraum mit Putzmaterial
- Garderobe für Schuhe und nasse Kleidung.
- Zwei Duschen, ein WC sowie ein Lavabo
- Terrasse, die vielfältig genutzt werden kann (Tischtennis, Hockey, …). Es ist erlaubt, die Tische aus dem Essraum zu tragen, um draussen zu essen.
- Der Keller im Untergeschoss ist Werkstatt und Holzlager.
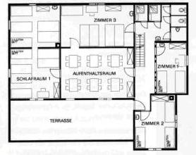
Erster Stock (Bilder)

- Zwei Duschen, zwei WC sowie ein Pissoir mit Lavabo
- Zimmer 1: 3 Betten, Schrank, Lavabo
- Zimmer 2: 5 Betten, Schrank, Lavabo
- Zimmer 3: 7 Betten, Schrank, Lavabo -> reserviert für Leitung (Sicherungskasten)
- Schlafraum 1: 2-teilig mit offenem Durchgang. 13 Betten, Schränke, Lavabo
- Aufenthaltsraum mit Fussballkasten und Tischen, Spielen und Büchern.
- Terrasse: Beliebter Ort zum Sonnenbaden, Decken für Draussen befinden sich direkt vor der Türe in der Truhe.
Zweiter Stock (Bilder)

- zwei WC, ein Pissoir, ein Lavabo im Vorraum
- halboffener Vorplatz mit Tischfussball
- Schlafraum 2: 20 Betten, Schrank
- Schlafraum 3: 8 Betten, Schrank, Lavabo
- Zimmer 4 (im Turm): 3 Betten, Schrank, Lavabo
- Zimmer 5 (im Turm): 3 Betten, Schrank, Lavabo
Das Bettenangebot insgesamt
| Stock |
Raum |
Betten |
| 1 |
Schlafraum 1 |
13 |
| |
Zimmer 1 |
3 |
| |
Zimmer 2 |
5 |
| |
Zimmer 3 |
7 |
| 2 |
Schlafraum 2 |
20 |
| |
Schlafraum 3 |
8 |
| |
Zimmer 4 |
3 |
| 3 |
Zimmer 5 |
3 |
| Total |
|
62 |